
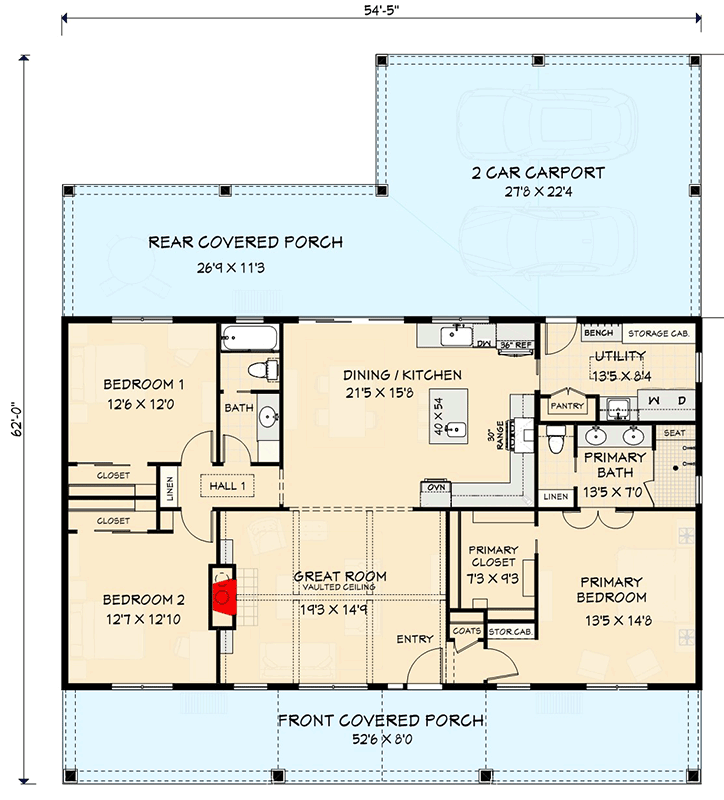
Total Heated Area
1,717 sq. ft.
1st Floor
1,717 sq. ft.
Bedrooms
3
Full bathrooms
2
Standard Foundations
Monolithic Slab
Exterior Walls
2x6
Width
54' 4"
Depth
62' 0"
Max Ridge Height
21' 10"
Type
Carport, Attached
Area
614 sq. ft.
Count
2 Cars
Entry Location
Rear, Side
First Floor
9'
Room
Ceiling Type
Height
Great Room
Vaulted
13' 2''
Primary Pitch
9 on 12
Secondary Pitch
4 on 12
Framing Type
Stick
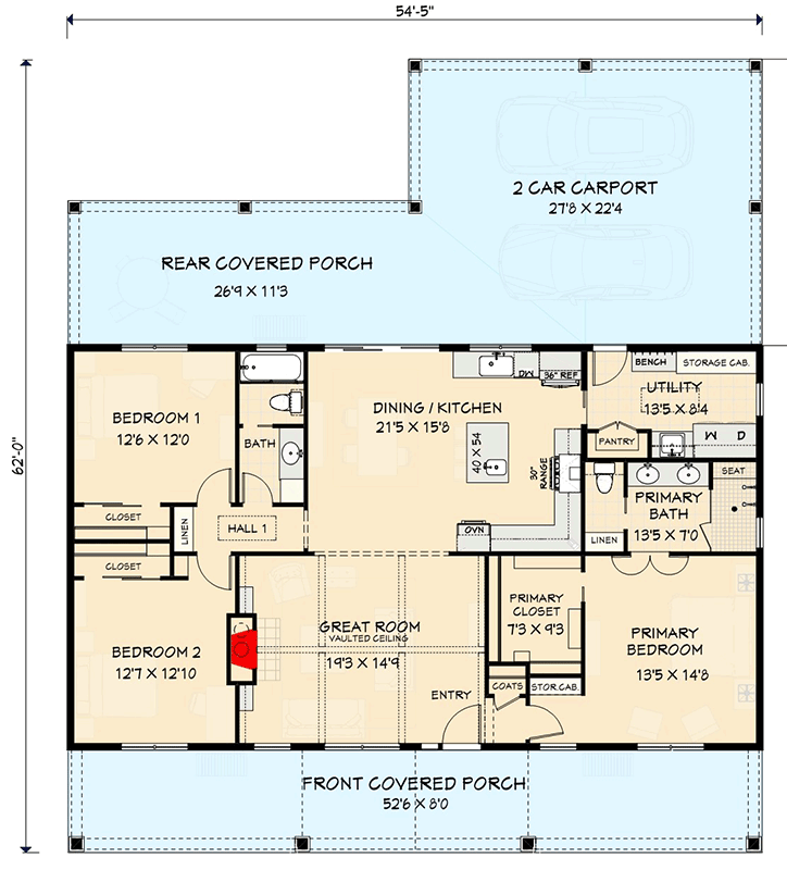
Total Heated Area
1,717 sq. ft.
1st Floor
1,717 sq. ft.
Bedrooms
3
Full bathrooms
2
Standard Foundations
Monolithic Slab
Exterior Walls
2x6
Width
54' 4"
Depth
62' 0"
Max Ridge Height
21' 10"
Type
Carport, Attached
Area
614 sq. ft.
Count
2 Cars
Entry Location
Rear, Side
First Floor
9'
Room
Ceiling Type
Height
Great Room
Vaulted
13' 2''
Primary Pitch
9 on 12
Secondary Pitch
4 on 12
Framing Type
Stick