

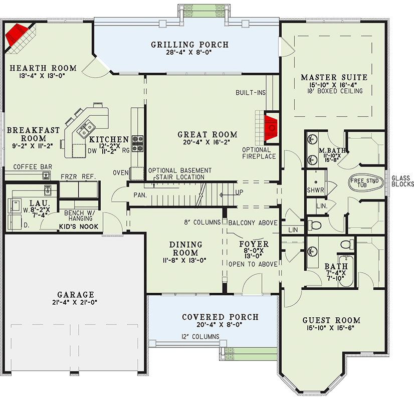
Total Heated Area
3,343 sq. ft.
1st Floor
2,245 sq. ft.
2nd Floor
1,098 sq. ft.
Bonus
261 sq. ft.
Porch, Combined
384 sq. ft.
Bedrooms
4
Full bathrooms
3
Standard Foundations
Crawl, Slab
Exterior Walls
2x4
Optional Type(s)
2x6
Width
58' 10"
Depth
59' 0"
Max Ridge Height
32' 0"
Type
Standard, Attached
Area
467 sq. ft.
Count
2 Cars
Entry Location
Front
First Floor
9'
Second Floor
8'
Primary Pitch
10 on 12
Framing Type
Stick
Total Heated Area
3,343 sq. ft.
1st Floor
2,245 sq. ft.
2nd Floor
1,098 sq. ft.
Bonus
261 sq. ft.
Porch, Combined
384 sq. ft.
Bedrooms
4
Full bathrooms
3
Standard Foundations
Crawl, Slab
Exterior Walls
2x4
Optional Type(s)
2x6
Width
58' 10"
Depth
59' 0"
Max Ridge Height
32' 0"
Type
Standard, Attached
Area
467 sq. ft.
Count
2 Cars
Entry Location
Front
First Floor
9'
Second Floor
8'
Primary Pitch
10 on 12
Framing Type
Stick