

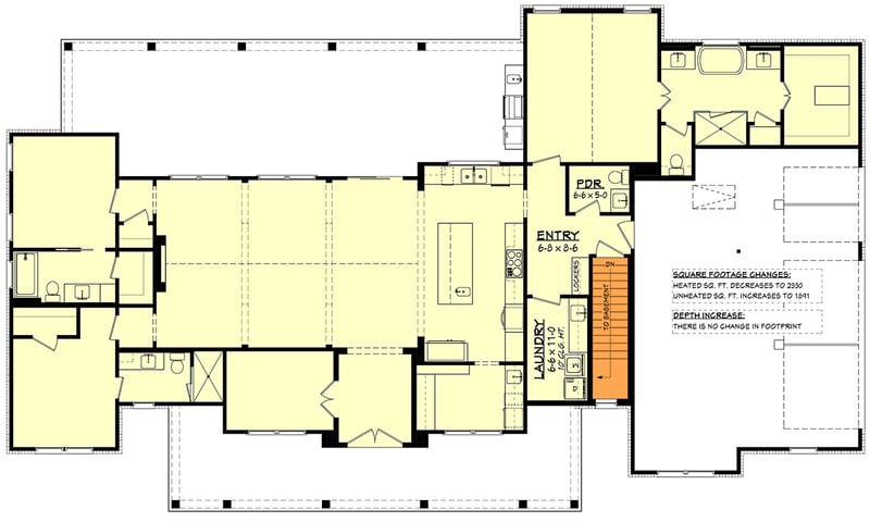
Total Heated Area
2,379 sq. ft.
1st Floor
2,379 sq. ft.
Porch, Front
364 sq. ft.
Porch, Rear
661 sq. ft.
Storage
22 sq. ft.
Bedrooms
3
Full bathrooms
3
Half bathrooms
1
Standard Foundations
Slab
Exterior Walls
2x4
Optional Type(s)
2x6
Width
91' 2"
Depth
53' 6"
Max Ridge Height
27' 0"
Type
Attached
Area
795 sq. ft.
Count
3 Cars
Entry Location
Side
First Floor
10'
Primary Pitch
8 on 12
Secondary Pitch
3 on 12
Framing Type
Stick
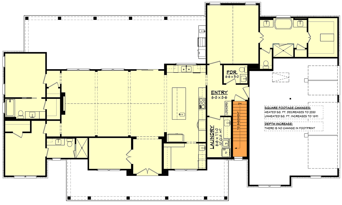
Total Heated Area
2,379 sq. ft.
1st Floor
2,379 sq. ft.
Porch, Front
364 sq. ft.
Porch, Rear
661 sq. ft.
Storage
22 sq. ft.
Bedrooms
3
Full bathrooms
3
Half bathrooms
1
Standard Foundations
Slab
Exterior Walls
2x4
Optional Type(s)
2x6
Width
91' 2"
Depth
53' 6"
Max Ridge Height
27' 0"
Type
Attached
Area
795 sq. ft.
Count
3 Cars
Entry Location
Side
First Floor
10'
Primary Pitch
8 on 12
Secondary Pitch
3 on 12
Framing Type
Stick