

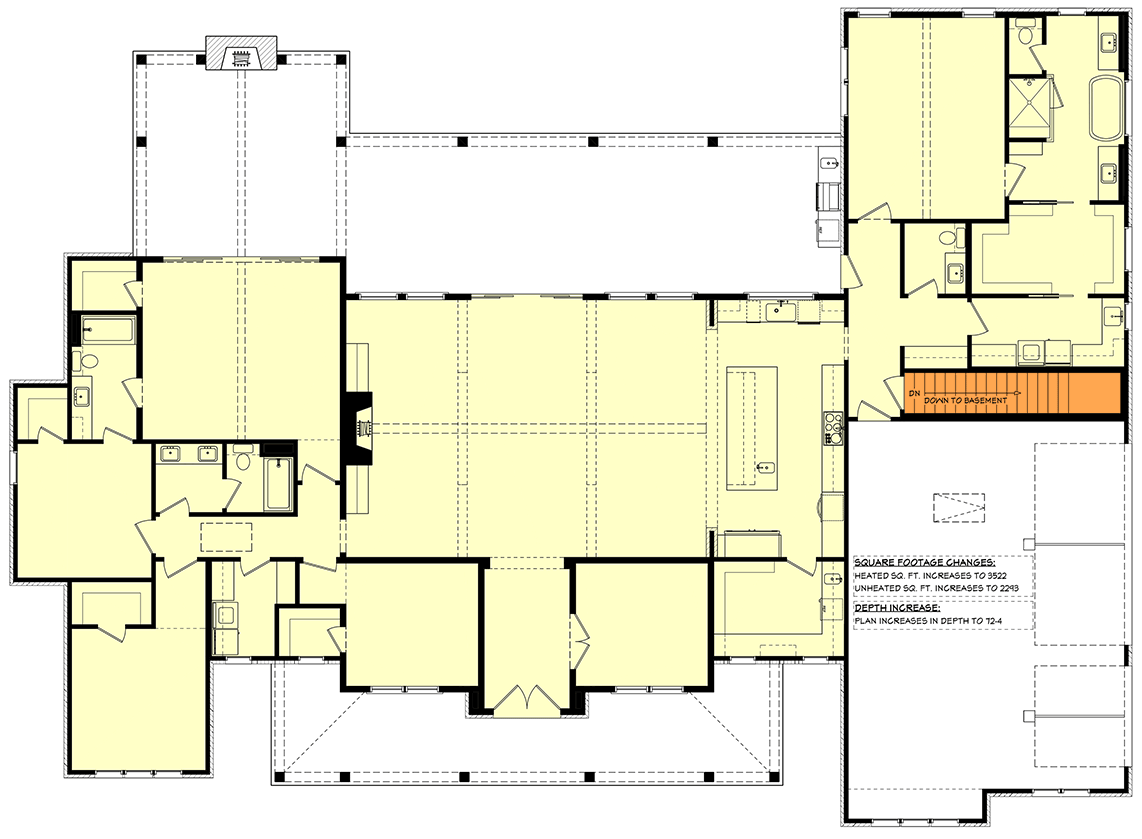
Total Heated Area
3,500 sq. ft.
1st Floor
3,500 sq. ft.
Porch, Front
372 sq. ft.
Porch, Rear
967 sq. ft.
Bedrooms
5
Full bathrooms
3
Half bathrooms
1
Standard Foundations
Slab
Exterior Walls
2x4
Optional Type(s)
2x6
Width
99' 6"
Depth
68' 8"
Max Ridge Height
30' 0"
Type
Standard, Attached
Area
865 sq. ft.
Count
3 Cars
Entry Location
Side
First Floor
10'
Primary Pitch
10 on 12
Secondary Pitch
12 on 12
Total Heated Area
3,500 sq. ft.
1st Floor
3,500 sq. ft.
Porch, Front
372 sq. ft.
Porch, Rear
967 sq. ft.
Bedrooms
5
Full bathrooms
3
Half bathrooms
1
Standard Foundations
Slab
Exterior Walls
2x4
Optional Type(s)
2x6
Width
99' 6"
Depth
68' 8"
Max Ridge Height
30' 0"
Type
Standard, Attached
Area
865 sq. ft.
Count
3 Cars
Entry Location
Side
First Floor
10'
Primary Pitch
10 on 12
Secondary Pitch
12 on 12