
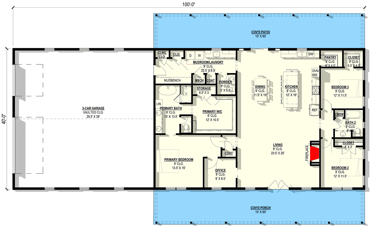
Total Heated Area
2,400 sq. ft.
1st Floor
2,400 sq. ft.
Porch, Front
600 sq. ft.
Covered Patio
600 sq. ft.
Bedrooms
3
Full bathrooms
2
Half bathrooms
1
Standard Foundations
Monolithic Slab, Post/Beam, Post Frame, Slab
Exterior Walls
2x6
Width
100' 0"
Depth
40' 0"
Type
Standard, Attached
Area
1600 sq. ft.
Count
3 Cars
Entry Location
Side
First Floor
9'
Primary Pitch
6 on 12
Framing Type
Stick Or Truss
Total Heated Area
2,400 sq. ft.
1st Floor
2,400 sq. ft.
Porch, Front
600 sq. ft.
Covered Patio
600 sq. ft.
Bedrooms
3
Full bathrooms
2
Half bathrooms
1
Standard Foundations
Monolithic Slab, Post/Beam, Post Frame, Slab
Exterior Walls
2x6
Width
100' 0"
Depth
40' 0"
Type
Standard, Attached
Area
1600 sq. ft.
Count
3 Cars
Entry Location
Side
First Floor
9'
Primary Pitch
6 on 12
Framing Type
Stick Or Truss