


Total Heated Area
1,662 sq. ft.
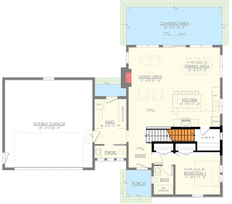
1st Floor
1,088 sq. ft.
2nd Floor
574 sq. ft.
Porch, Front
46 sq. ft.
Deck
250 sq. ft.
Bedrooms
2 or 3
Full bathrooms
2
Half bathrooms
1
Standard Foundations
Crawl
Exterior Walls
2x6
Width
57' 4"
Depth
49' 6"
Max Ridge Height
26' 4"
Type
Attached
Area
567 sq. ft.
Count
2 Cars
Entry Location
Front
First Floor
9'
Second Floor
7'
Primary Pitch
14 on 12
Secondary Pitch
9 on 12
Framing Type
Stick And Truss
Total Heated Area
1,662 sq. ft.
1st Floor
1,088 sq. ft.
2nd Floor
574 sq. ft.
Porch, Front
46 sq. ft.
Deck
250 sq. ft.
Bedrooms
2 or 3
Full bathrooms
2
Half bathrooms
1
Standard Foundations
Crawl
Exterior Walls
2x6
Width
57' 4"
Depth
49' 6"
Max Ridge Height
26' 4"
Type
Attached
Area
567 sq. ft.
Count
2 Cars
Entry Location
Front
First Floor
9'
Second Floor
7'
Primary Pitch
14 on 12
Secondary Pitch
9 on 12
Framing Type
Stick And Truss