

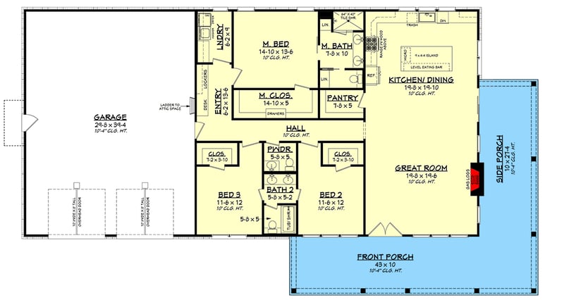
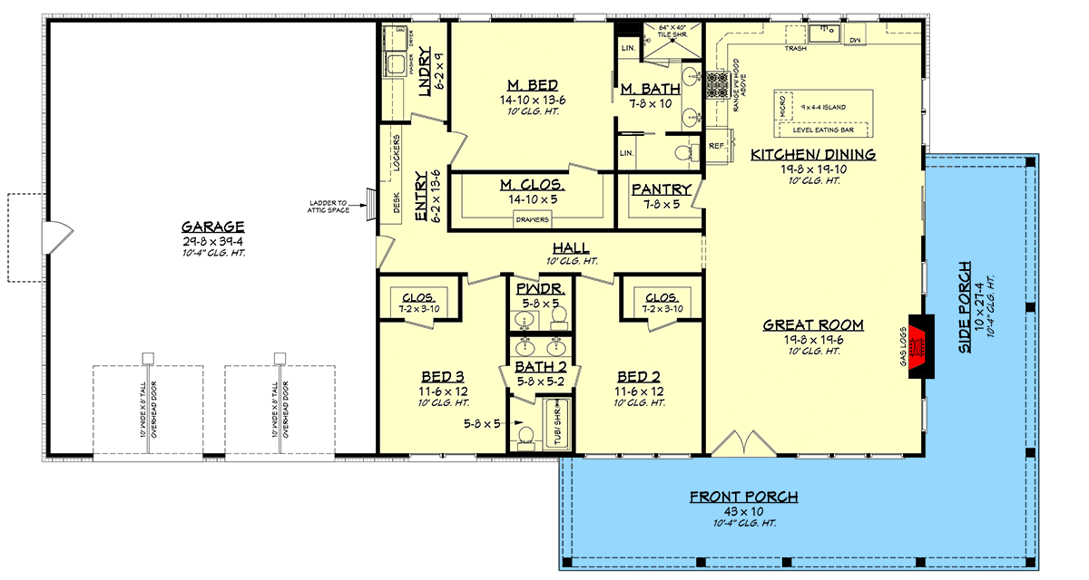
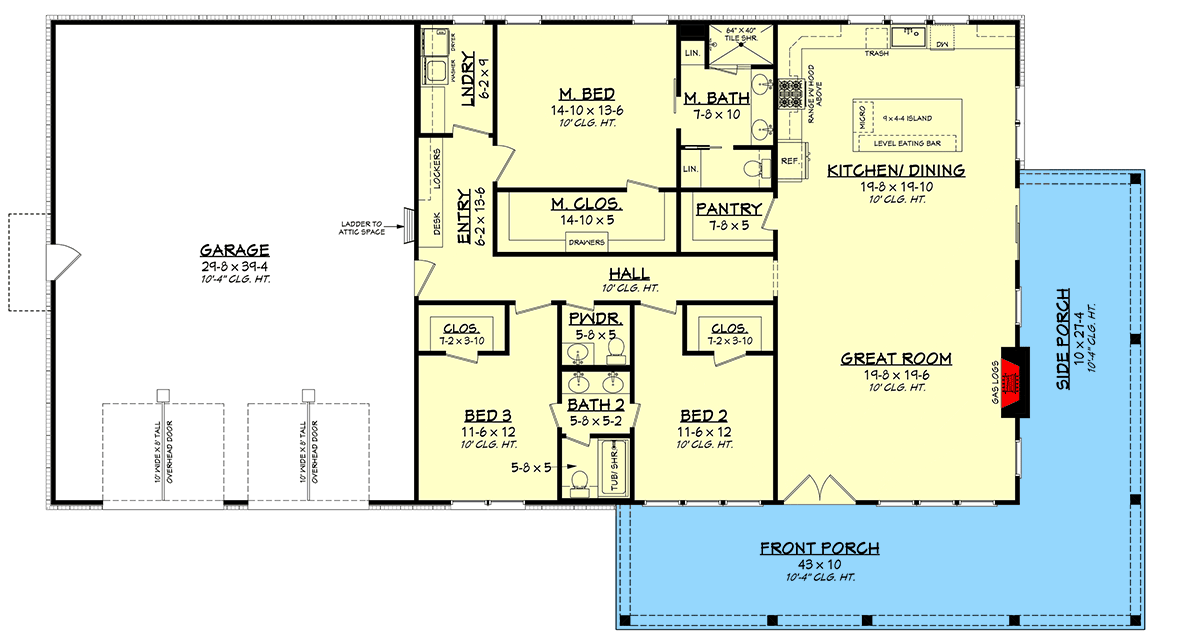
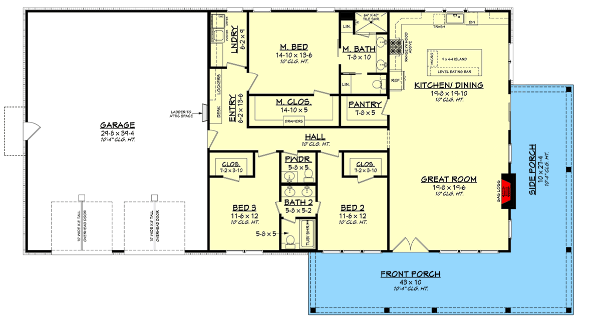
Total Heated Area
2,000 sq. ft.
1st Floor
2,000 sq. ft.
Porch, Front
703 sq. ft.
Bedrooms
3
Full bathrooms
2
Half bathrooms
1
Standard Foundations
Slab
Exterior Walls
2x4
Optional Type(s)
2x6
Width
90' 0"
Depth
50' 0"
Max Ridge Height
24' 0"
Type
Attached
Area
1200 sq. ft.
Count
2 Cars
Entry Location
Front
First Floor
10'
Primary Pitch
8 on 12
Secondary Pitch
2 on 12
Framing Type
Stick And Truss
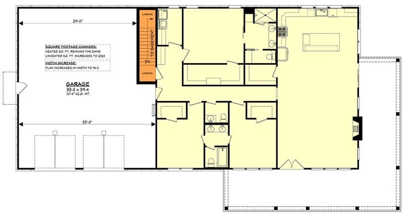
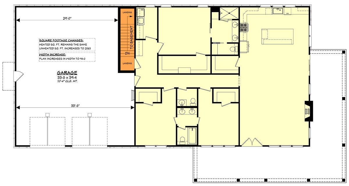
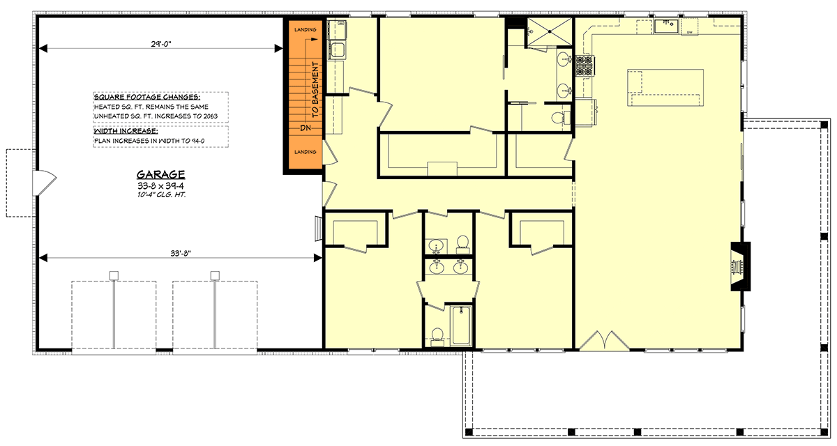
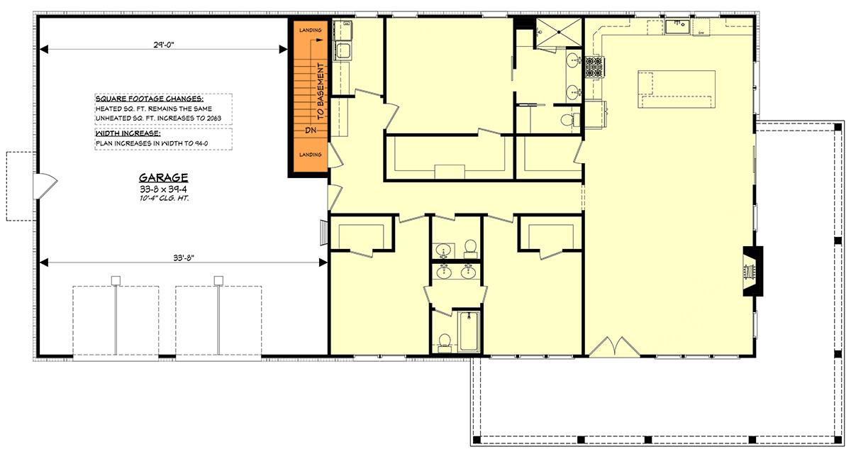
Total Heated Area
2,000 sq. ft.
1st Floor
2,000 sq. ft.
Porch, Front
703 sq. ft.
Bedrooms
3
Full bathrooms
2
Half bathrooms
1
Standard Foundations
Slab
Exterior Walls
2x4
Optional Type(s)
2x6
Width
90' 0"
Depth
50' 0"
Max Ridge Height
24' 0"
Type
Attached
Area
1200 sq. ft.
Count
2 Cars
Entry Location
Front
First Floor
10'
Primary Pitch
8 on 12
Secondary Pitch
2 on 12
Framing Type
Stick And Truss