Exclusive

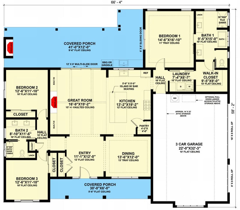
Total Heated Area
2,120 sq. ft.
1st Floor
2,120 sq. ft.
Porch, Combined
456 sq. ft.
Bedrooms
3
Full bathrooms
2
Standard Foundations
Monolithic Slab, Slab
Exterior Walls
2x6
Width
66' 4"
Depth
58' 2"
Max Ridge Height
22' 8"
Type
Standard, Attached
Area
738 sq. ft.
Count
3 Cars
Entry Location
Side
First Floor
10'
Room
Ceiling Type
Height
Entry
Flat
12' 0''
Dining Room
Tray
13' 0''
Great Room
Vaulted
15' 0''
Kitchen
Flat
12' 0''
Framing Type
Truss
Total Heated Area
2,120 sq. ft.
1st Floor
2,120 sq. ft.
Porch, Combined
456 sq. ft.
Bedrooms
3
Full bathrooms
2
Standard Foundations
Monolithic Slab, Slab
Exterior Walls
2x6
Width
66' 4"
Depth
58' 2"
Max Ridge Height
22' 8"
Type
Standard, Attached
Area
738 sq. ft.
Count
3 Cars
Entry Location
Side
First Floor
10'
Room
Ceiling Type
Height
Entry
Flat
12' 0''
Dining Room
Tray
13' 0''
Great Room
Vaulted
15' 0''
Kitchen
Flat
12' 0''
Framing Type
Truss