

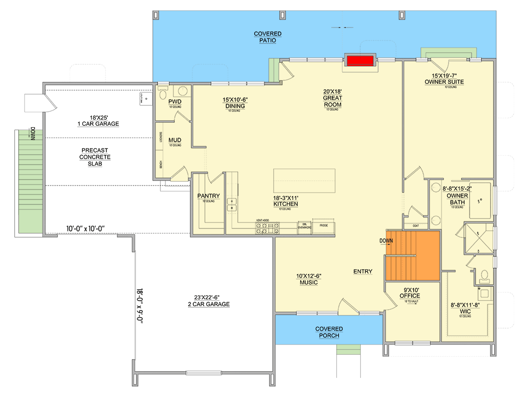
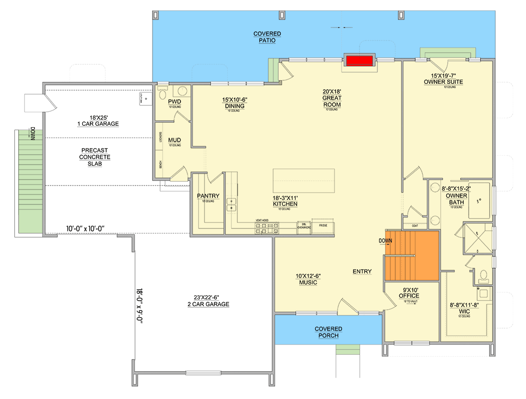
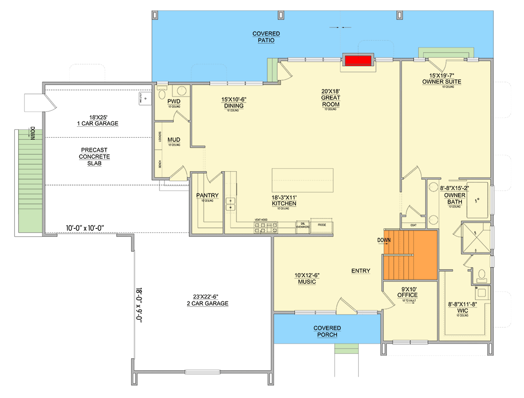
Total Heated Area
4,199 sq. ft.
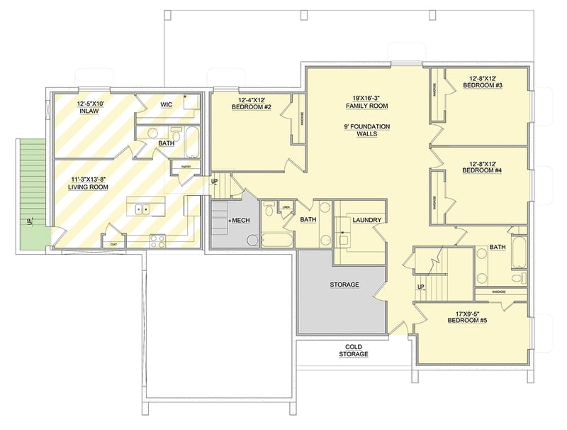
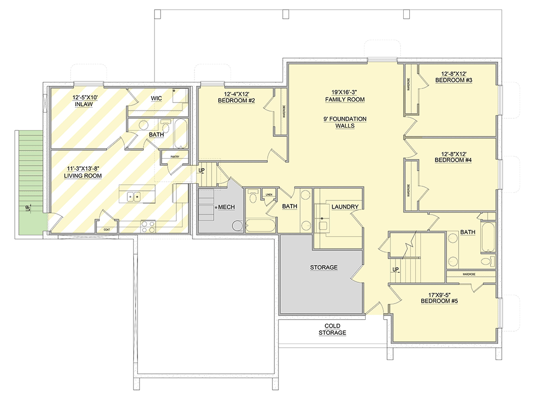
Lower Level
2,036 sq. ft.
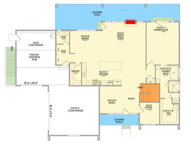
1st Floor
2,163 sq. ft.
Porch, Front
90 sq. ft.
Porch, Rear
456 sq. ft.
In-Law Suite
578 sq. ft.
Bedrooms
5 or 6
Full bathrooms
3 or 4
Half bathrooms
1
Standard Foundations
Basement
Exterior Walls
2x6
Width
76' 0"
Depth
63' 0"
Max Ridge Height
20' 6"
Type
Attached
Area
1033 sq. ft.
Count
3 Cars
Entry Location
Front, Side
Lower Level
9'
First Floor
10'
Room
Ceiling Type
Height
Master Bedroom
Flat
10' 0''
Master Bath
Flat
10' 0''
Master WIC
Flat
10' 0''
Kitchen
Flat
10' 0''
Dining Room
Flat
10' 0''
Great Room
Flat
10' 0''
Bedroom 2
Flat
9' 0''
Bedroom 3
Flat
9' 0''
Bedroom 4
Flat
9' 0''
Bedroom 5
Flat
9' 0''
Garage
Flat
0' 0''
RV Garage
Flat
0' 0''
Garage Door Dimensions
0' 0''
Garage Door Dimensions
0' 0''
Primary Pitch
9 on 12
Secondary Pitch
5 on 12
Framing Type
Truss
Total Heated Area
4,199 sq. ft.
Lower Level
2,036 sq. ft.
1st Floor
2,163 sq. ft.
Porch, Front
90 sq. ft.
Porch, Rear
456 sq. ft.
In-Law Suite
578 sq. ft.
Bedrooms
5 or 6
Full bathrooms
3 or 4
Half bathrooms
1
Standard Foundations
Basement
Exterior Walls
2x6
Width
76' 0"
Depth
63' 0"
Max Ridge Height
20' 6"
Type
Attached
Area
1033 sq. ft.
Count
3 Cars
Entry Location
Front, Side
Lower Level
9'
First Floor
10'
Room
Ceiling Type
Height
Master Bedroom
Flat
10' 0''
Master Bath
Flat
10' 0''
Master WIC
Flat
10' 0''
Kitchen
Flat
10' 0''
Dining Room
Flat
10' 0''
Great Room
Flat
10' 0''
Bedroom 2
Flat
9' 0''
Bedroom 3
Flat
9' 0''
Bedroom 4
Flat
9' 0''
Bedroom 5
Flat
9' 0''
Garage
Flat
0' 0''
RV Garage
Flat
0' 0''
Garage Door Dimensions
0' 0''
Garage Door Dimensions
0' 0''
Primary Pitch
9 on 12
Secondary Pitch
5 on 12
Framing Type
Truss