



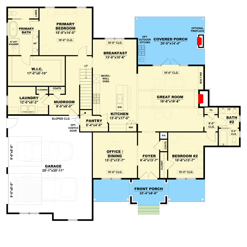
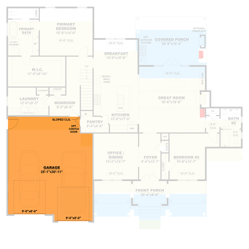
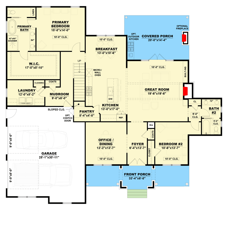
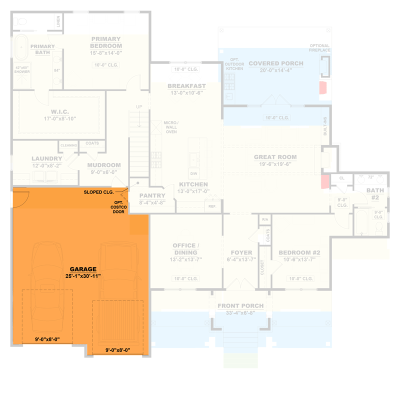
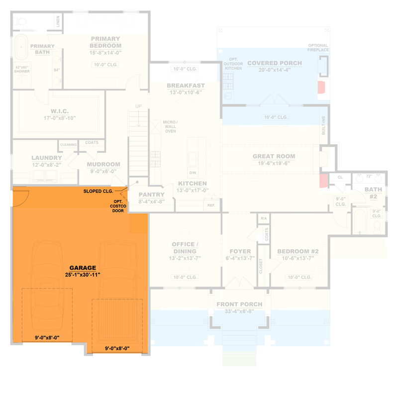
Total Heated Area
2,946 sq. ft.
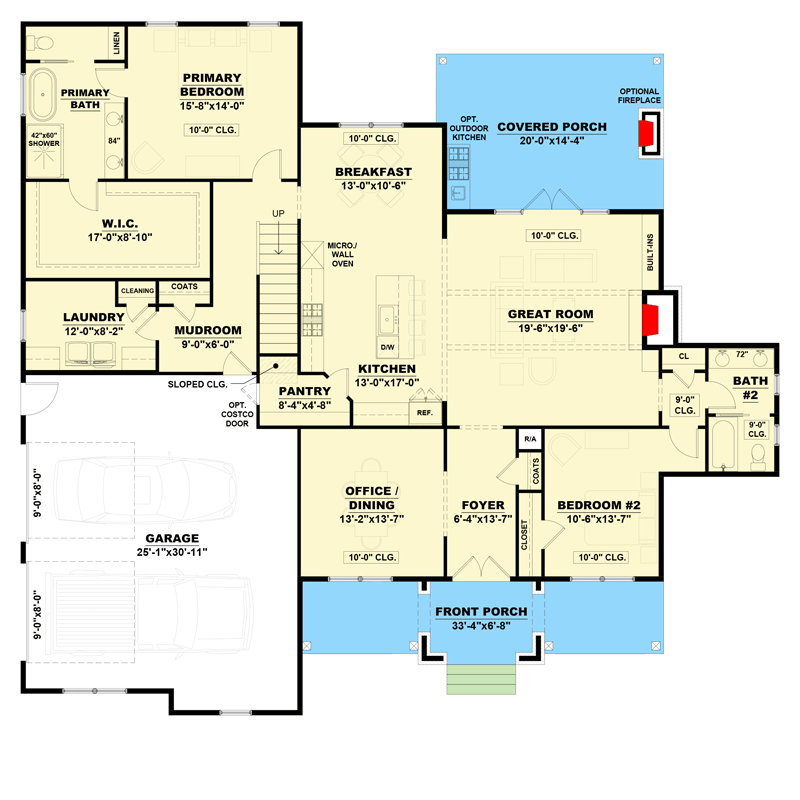
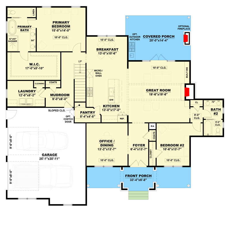
1st Floor
2,256 sq. ft.
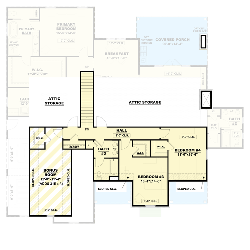
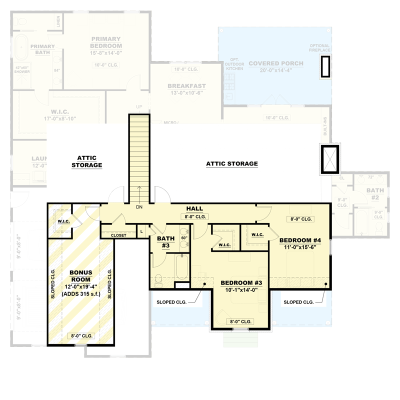
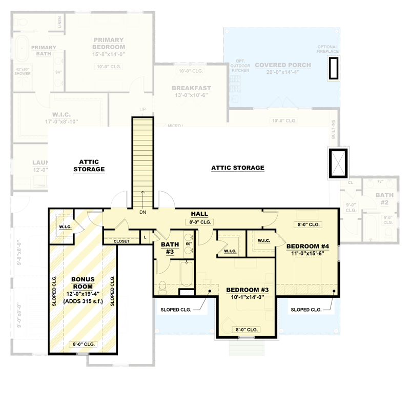
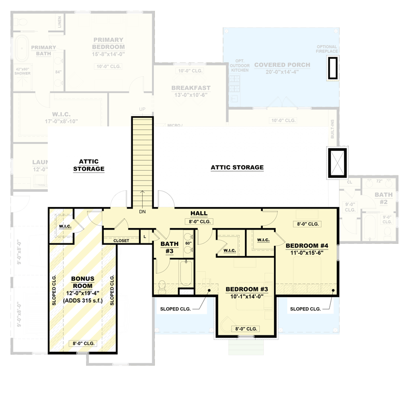
2nd Floor
690 sq. ft.
Bonus
315 sq. ft.
Porch, Front
234 sq. ft.
Covered Patio
293 sq. ft.
Bedrooms
4
Full bathrooms
3
Standard Foundations
Crawl
Exterior Walls
2x6
Width
64' 0"
Depth
70' 0"
Max Ridge Height
28' 8"
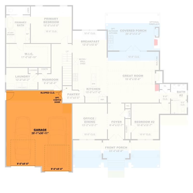
Type
Standard, Attached
Area
770 sq. ft.
Count
2 or 3 Cars
Entry Location
Front, Side
First Floor
10'
Second Floor
8'
Primary Pitch
8 on 12
Secondary Pitch
12 on 12
Total Heated Area
2,946 sq. ft.
1st Floor
2,256 sq. ft.
2nd Floor
690 sq. ft.
Bonus
315 sq. ft.
Porch, Front
234 sq. ft.
Covered Patio
293 sq. ft.
Bedrooms
4
Full bathrooms
3
Standard Foundations
Crawl
Exterior Walls
2x6
Width
64' 0"
Depth
70' 0"
Max Ridge Height
28' 8"
Type
Standard, Attached
Area
770 sq. ft.
Count
2 or 3 Cars
Entry Location
Front, Side
First Floor
10'
Second Floor
8'
Primary Pitch
8 on 12
Secondary Pitch
12 on 12