Exclusive



Total Heated Area
2,488 sq. ft.
1st Floor
1,696 sq. ft.
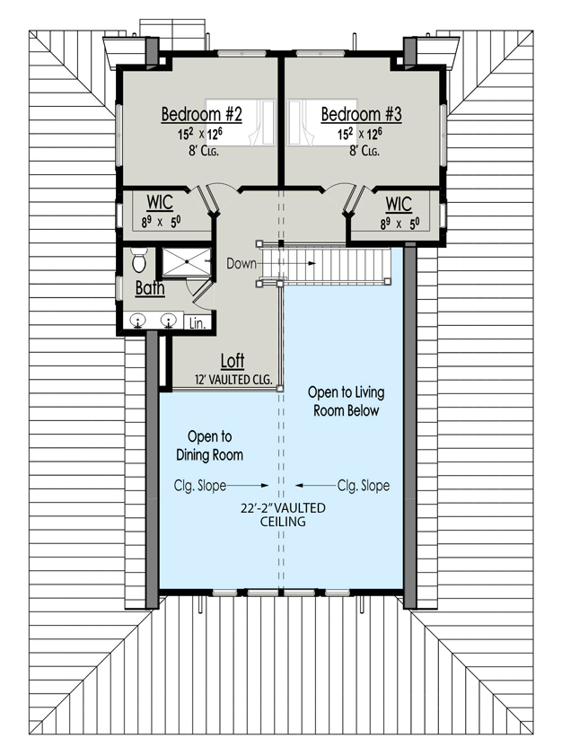
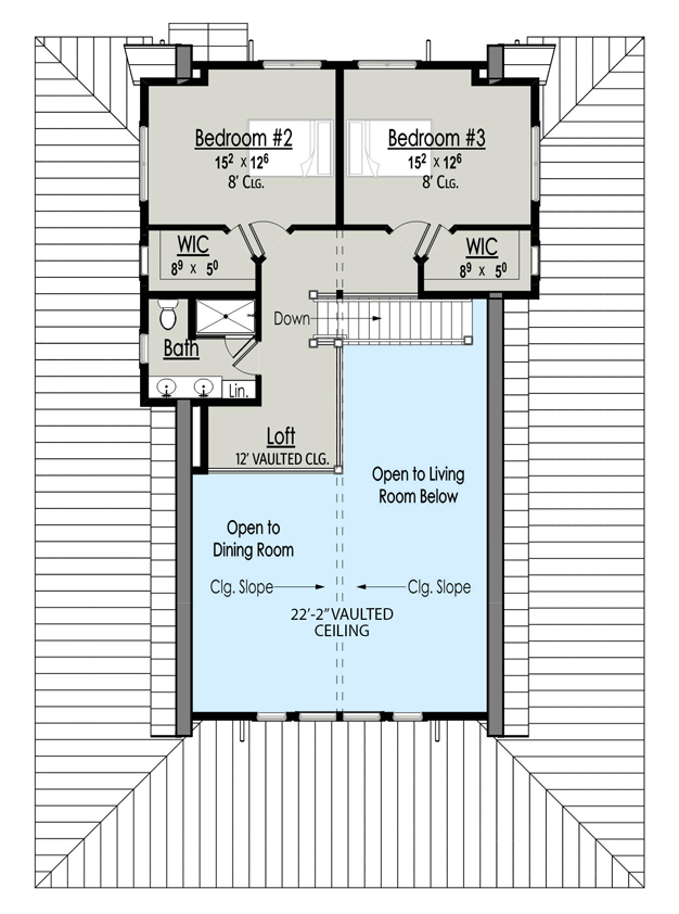
2nd Floor
792 sq. ft.
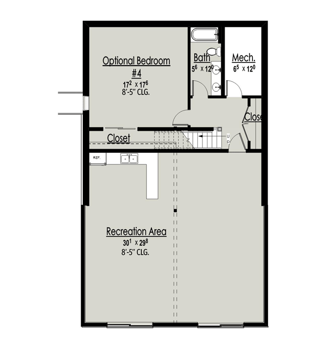
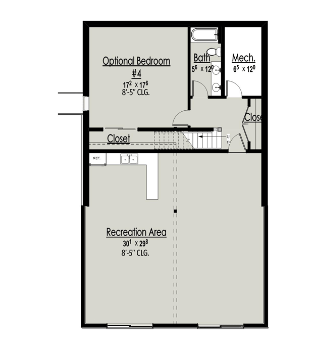
Optional Lower Level
1,595 sq. ft.
Porch, Combined
742 sq. ft.
Screened Porch
552 sq. ft.
Bedrooms
3 or 4
Full bathrooms
2 or 3
Half bathrooms
1
Standard Foundations
Walkout
Exterior Walls
2x6
Width
47' 0"
Depth
66' 0"
Max Ridge Height
30' 2"
Lower Level
8' 5"
First Floor
9'
Second Floor
8'
Total Heated Area
2,488 sq. ft.
1st Floor
1,696 sq. ft.
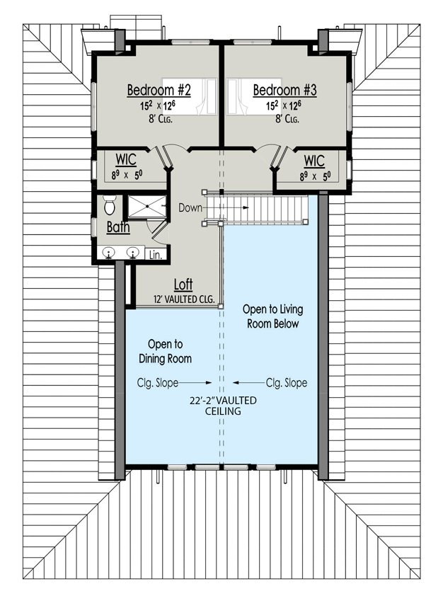
2nd Floor
792 sq. ft.
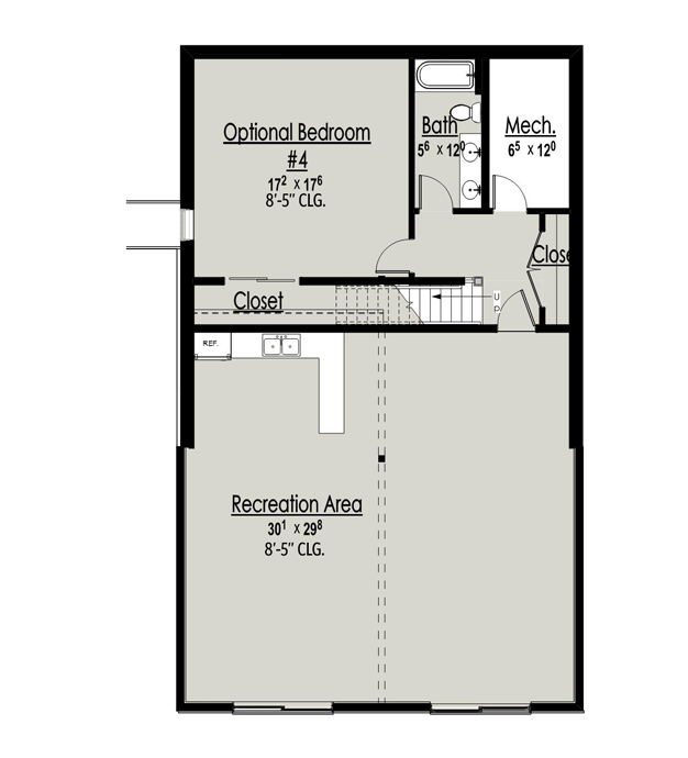
Optional Lower Level
1,595 sq. ft.
Porch, Combined
742 sq. ft.
Screened Porch
552 sq. ft.
Bedrooms
3 or 4
Full bathrooms
2 or 3
Half bathrooms
1
Standard Foundations
Walkout
Exterior Walls
2x6
Width
47' 0"
Depth
66' 0"
Max Ridge Height
30' 2"
Lower Level
8' 5"
First Floor
9'
Second Floor
8'