Exclusive

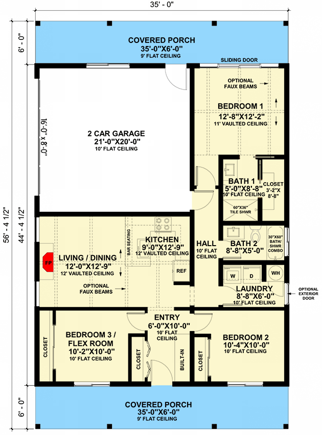
Total Heated Area
1,104 sq. ft.
1st Floor
1,104 sq. ft.
Porch, Front
105 sq. ft.
Porch, Rear
105 sq. ft.
Entry
60 sq. ft.
Bedrooms
2 or 3
Full bathrooms
2
Standard Foundations
Monolithic Slab, Slab
Exterior Walls
2x6
Width
35' 0"
Depth
56' 5"
Max Ridge Height
22' 1"
Type
Attached
Area
420 sq. ft.
Count
2 Cars
Entry Location
Side
First Floor
10'
Room
Ceiling Type
Height
Living Room
Vaulted
12' 0''
Kitchen
Vaulted
12' 0''
Primary Pitch
6 on 12
Secondary Pitch
10 on 12
Framing Type
Truss
Total Heated Area
1,104 sq. ft.
1st Floor
1,104 sq. ft.
Porch, Front
105 sq. ft.
Porch, Rear
105 sq. ft.
Entry
60 sq. ft.
Bedrooms
2 or 3
Full bathrooms
2
Standard Foundations
Monolithic Slab, Slab
Exterior Walls
2x6
Width
35' 0"
Depth
56' 5"
Max Ridge Height
22' 1"
Type
Attached
Area
420 sq. ft.
Count
2 Cars
Entry Location
Side
First Floor
10'
Room
Ceiling Type
Height
Living Room
Vaulted
12' 0''
Kitchen
Vaulted
12' 0''
Primary Pitch
6 on 12
Secondary Pitch
10 on 12
Framing Type
Truss