

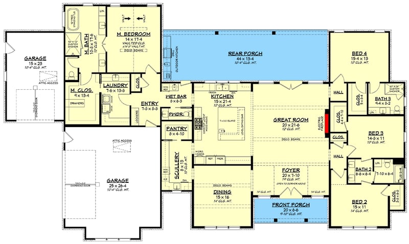
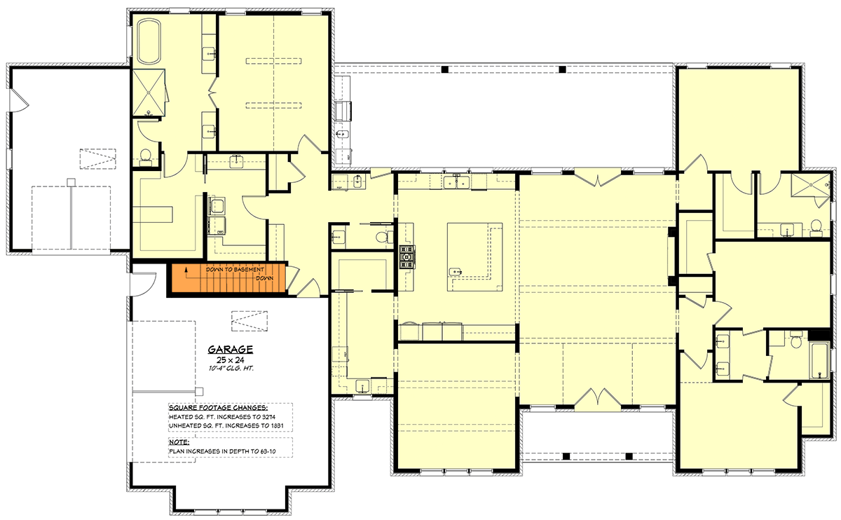
Total Heated Area
3,250 sq. ft.
1st Floor
3,250 sq. ft.
Porch, Front
130 sq. ft.
Porch, Rear
587 sq. ft.
Bedrooms
4
Full bathrooms
3
Half bathrooms
1
Standard Foundations
Slab
Exterior Walls
2x4
Width
105' 0"
Depth
61' 10"
Max Ridge Height
30' 0"
Type
Standard, Attached
Area
1086 sq. ft.
Count
3 Cars
Entry Location
Side
First Floor
10'
Primary Pitch
12 on 12
Secondary Pitch
4 on 12
Framing Type
Stick
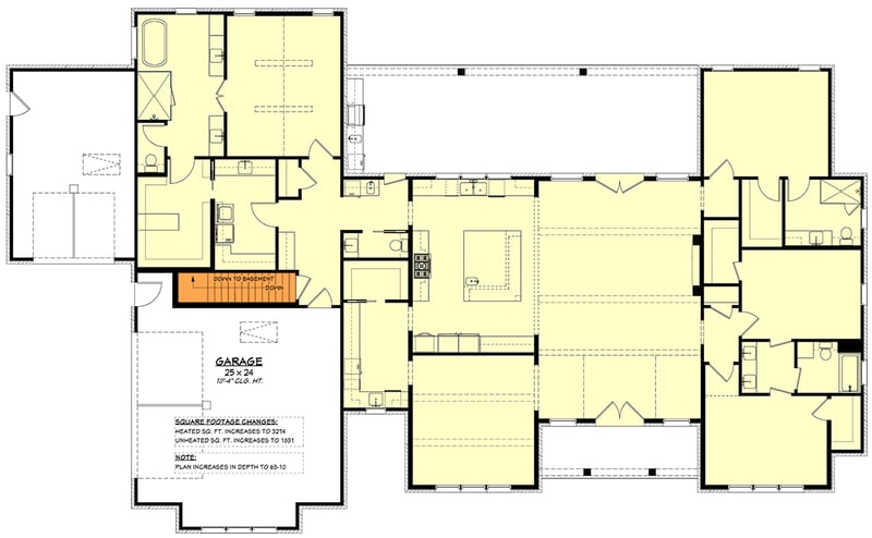
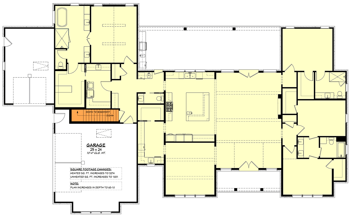
Total Heated Area
3,250 sq. ft.
1st Floor
3,250 sq. ft.
Porch, Front
130 sq. ft.
Porch, Rear
587 sq. ft.
Bedrooms
4
Full bathrooms
3
Half bathrooms
1
Standard Foundations
Slab
Exterior Walls
2x4
Width
105' 0"
Depth
61' 10"
Max Ridge Height
30' 0"
Type
Standard, Attached
Area
1086 sq. ft.
Count
3 Cars
Entry Location
Side
First Floor
10'
Primary Pitch
12 on 12
Secondary Pitch
4 on 12
Framing Type
Stick