

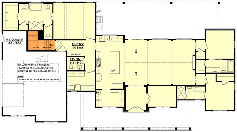
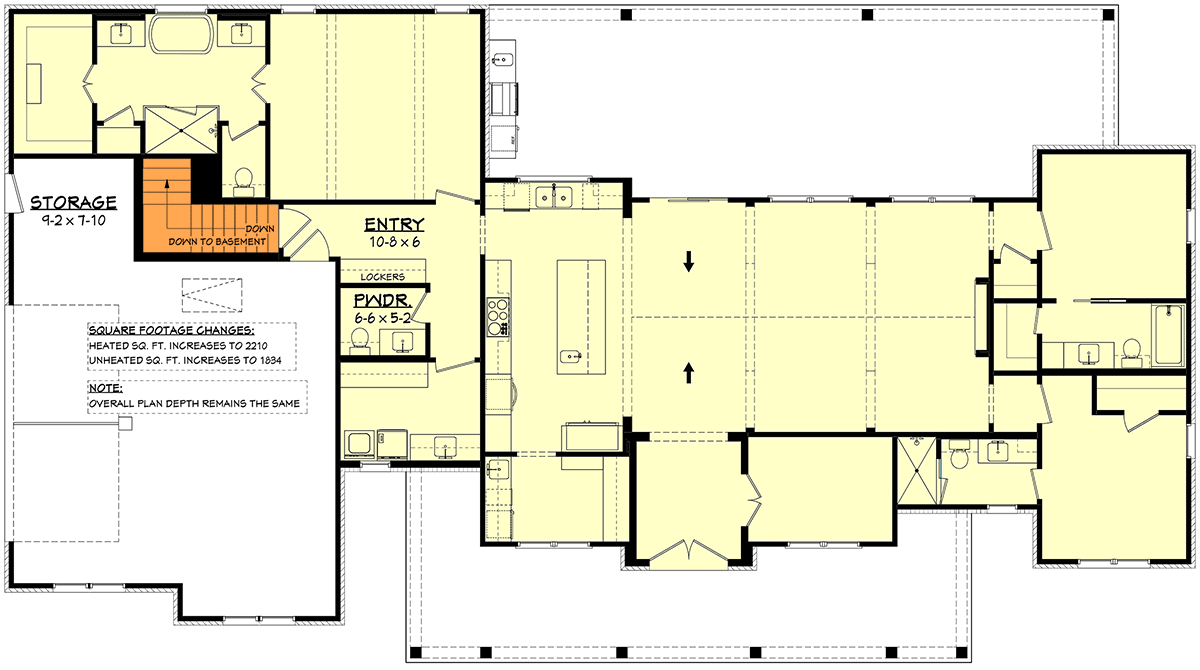
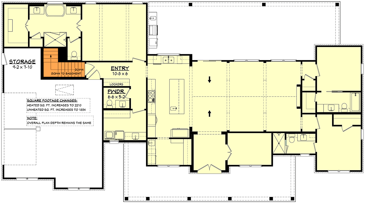
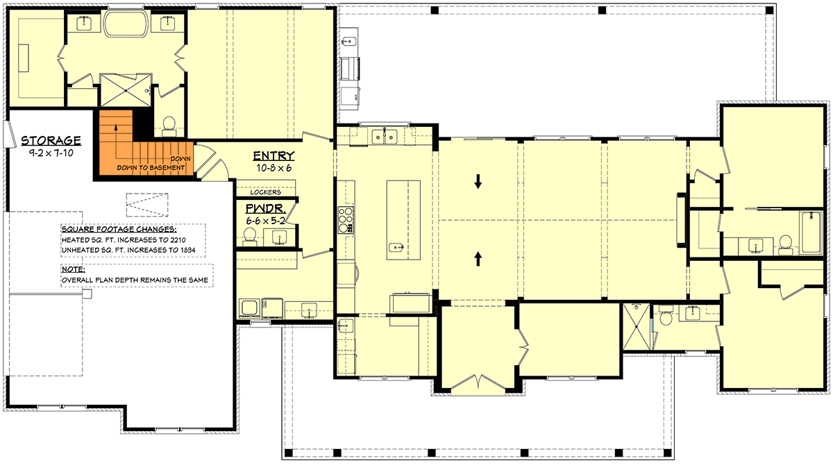
Total Heated Area
2,191 sq. ft.
1st Floor
2,191 sq. ft.
Porch, Front
392 sq. ft.
Porch, Rear
647 sq. ft.
Storage
33 sq. ft.
Bedrooms
3
Full bathrooms
3
Half bathrooms
1
Standard Foundations
Slab
Exterior Walls
2x4
Optional Type(s)
2x6
Width
89' 10"
Depth
49' 4"
Type
Standard, Attached
Area
671 sq. ft.
Count
2 Cars
Entry Location
Side
First Floor
10'
Primary Pitch
8 on 12
Secondary Pitch
12 on 12
Framing Type
Stick
Total Heated Area
2,191 sq. ft.
1st Floor
2,191 sq. ft.
Porch, Front
392 sq. ft.
Porch, Rear
647 sq. ft.
Storage
33 sq. ft.
Bedrooms
3
Full bathrooms
3
Half bathrooms
1
Standard Foundations
Slab
Exterior Walls
2x4
Optional Type(s)
2x6
Width
89' 10"
Depth
49' 4"
Type
Standard, Attached
Area
671 sq. ft.
Count
2 Cars
Entry Location
Side
First Floor
10'
Primary Pitch
8 on 12
Secondary Pitch
12 on 12
Framing Type
Stick